
設計室
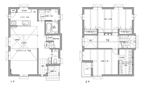
吹抜けsococo-つくっちゃいました
吹抜sococo つくっちゃいました。
吹抜sococo はじめます。 ホームページの「お知らせ」でご案内させていただいておりますが 企画型住宅『sococo』の新しいモデルハウスを5月12日にオープン致します 駐車スペースが限られているので 完全予約制の見学会で ご予約は GW明けに ホームページ上でスタートです ちょうど ブログの順番もまわってきたことですし オープンに向け 設計室加藤から モデルハウスについてご紹介していこうと思い…

設計室
吹抜けsococo-つくっちゃいました
吹抜sococo はじめます。 ホームページの「お知らせ」でご案内させていただいておりますが 企画型住宅『sococo』の新しいモデルハウスを5月12日にオープン致します 駐車スペースが限られているので 完全予約制の見学会で ご予約は GW明けに ホームページ上でスタートです ちょうど ブログの順番もまわってきたことですし オープンに向け 設計室加藤から モデルハウスについてご紹介していこうと思い…

設計室
ようやく札幌も暖かくなってきました。 日差しも段々気持ちよくなってきましたね。 今日は日差しをコントロールする窓の話。 窓は景色を切り取る・・・という言い方もあるように、大きな窓を意図的に計画する事がおおいですが、 こんなに大きくとるととても気持ちが良いですよね。 ただ闇雲に大きくできるわけではなく、性能も同時に考えなければなりません。 一般にペアガラス、トリプルガラス、4重(クワトロ)ガラスなど…

設計室
設計室 蝶野です。 いつも事務所にて図面を書いて妄想しておりますが 現場にて打ち合わせ風景を今日は紹介します。 今日はオーディオ屋さんのCAVIN大阪屋さんと配管経路等の検討中です。 ↑現場に打ち合わせに来てくれました。 今回はプロジェクター、スクリーン、スピ-カー5カ所等予定しております。 お家で大画面にて映画等迫力ありますよね~楽しみです! オーディオの次はお家の換気の経路等 家が出来上…

設計室
日々のこと
設計室の尾畑です。 雪解けも進んで暖かくなってきましたね。 皆さん心機一転、新しいことにチェレンジしようとしている方も 多いことでしょう。 そこで!読書はいかがでしょうか。 実は三五グループのビル内に私設図書室があります。 3階のガラス張りの小部屋… 最新ハードカバーの小説がズラリと揃っています。 &…

設計室
日々のこと
設計室 石塚です。 3月に入りました。 寒暖差の多い日々が続きます。 雪も、思い出したようにどんどん降ってきて、春遠いなと、 そんな3月でも、ありがたい事に春夏と同じだけの工事量があります。 本日も建方中の現場を確認してきました。 (建て方=木材を組み上げる作業) オール道産カラマツで組み上げている平屋の家です 延…

設計室
日々のこと
設計室小原です。 数日前まで暖かく、もうすぐ春がやってくるとワクワクしておりましたが、週 間天気予報ですとまた寒さが戻ってくるとか…。 寒さがとてつもなく苦手な私にとっては春が遠のいて非常に残念なのですが。 そんな寒い時でも楽しむ方法が幾つかあると思いますが、近隣の駅前で少し前 にやっておりました雪明りを紹介したいと思います。 近隣の方がボランティアで作成したものが今年は1200個あったと伺いまし…

設計室
日々のこと
金銀銅と華やかな話題が続いていますが色の話を少し…。 すっかり外壁材としてお馴染みになったガルバリウム鋼板(JISでは「溶融55%アルミニウム-亜鉛合金めっき鋼板」となっているようです。)、そのサンプル帳の色の名前が面白い。 各社とも艶の具合や微妙な色合いをその名前に込めているのだろう。 主流はカタカナ表記の名前、たとえばグレー系に限定しても、ダークグレー、アイリッシュグレー、ストーングレー、ウォ…

設計室
日々のこと
はじめまして。 昨年、10月より入社させていただきました、設計室の寺江です。 おいしいものを食べることが大好きなわたしですが、 いちばん好きな食べ物は、ごはん(白米)です! と言うと、どすこいと友達に言われまして、、、。 そんなどすこい系女子が今回ブログを担当させていただきます。 よろしくお願いします! ということで、 先日、お休みの日に友達と「さっぽろ雪まつり」に行ってきました。 …

設計室
cafe 35stockのこと
設計室の石塚です 久しぶりにcafe35stockの事を少し cafe35stockの冷暖房には 地中熱を活用しています。 杭の工事風景です↓ この杭で地中にパイプを挿入する事で、 冬は、地中熱を取り出したり、 夏は熱を戻したりする 仕組みを取り入れました。 元々土の中…

設計室
設計室若林です。 年が明けたと思ったらもう1月もあと1日で終わります。早いですね。会社の餅つき大会も終わりイベント等がないので自分のお気に入りのものをブログに書かせていただきます。 昨年引越しをしましてダイニングテーブル兼勉強机を探していました。(1LDK2人暮らしなので一緒に使っています…)いっぱい良いものはたくさんあったのですが部屋も広くないので、テーブルの脚と天板はバラバ…